
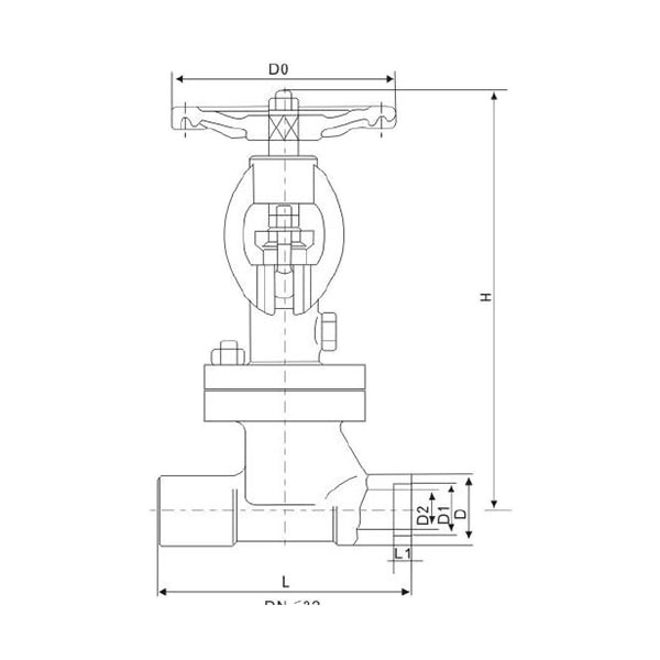
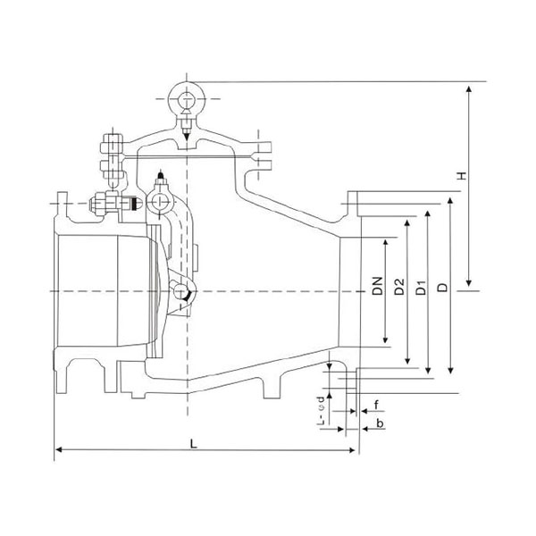
DS/Z41, DS/Z44 water sealed gate valves
DS/Z41, DS/Z44, DS/Z941, DS/Z944, DS/Z541, DS/Z544, DS/Z441, DS/Z444 (Y, H) - PN 10, 16, 25, 40, 64, 100 water sealed gate valves are suitable for nominal pressure S10.0Mpa, working temperature ≤ 425C, working media: water, steam, oil. Used as an opening and closing device on non corrosive gas pipelines, especially suitable for vacuum condensation systems of steam turbines in thermal power plants.
TEL0577-6733 0555